
Ash Street
Waltham, MA
Project Type: New Construction
Projected Status: In Progress
This project is new construction with multiple units. aijou group provided project renderings for marketing materials and local approval.

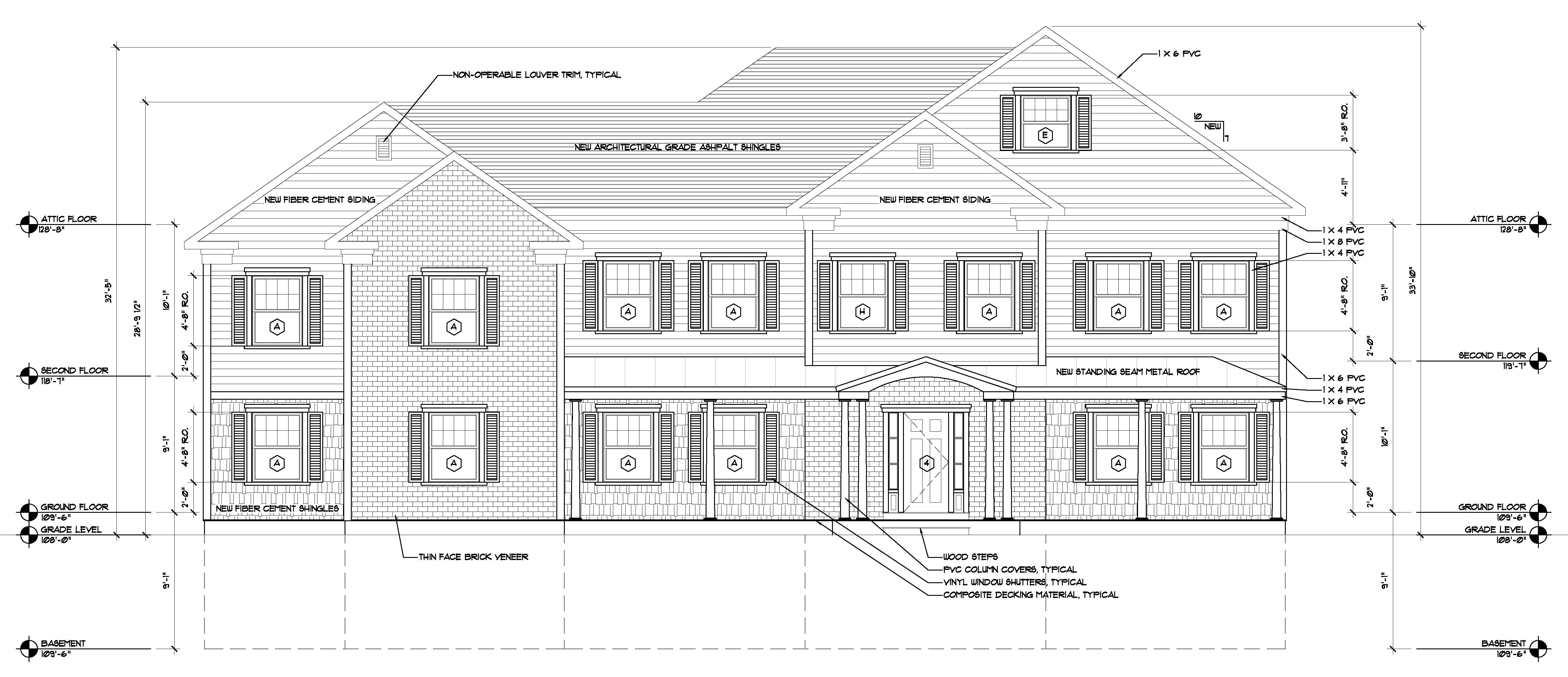
Savoy Road
Needham, MA
Project Type: New Construction
Projected Status: In Progress
This project is new construction with approximately 5,500sf of living area. aijou group provided construction documents for this project which includes 3 finished floors, 5 bedroos and 4.5 baths. Under contract with Hawthorn Builders.

Rae Avenue
Needham, MA
Project Type: Major Renovation
Projected Status: In Progress
This project converts an existing cape into a colonial home. aijou group provided construction documents for this project which includes an open concept first floor along with a second floor addition with four bedrooms and a Master Suite. A new garage and porch were also included in the project. Under contract with Hawthorn Builders.

Coburn Road
Tyngsboro, MA
Project Type: Addition
Projected Status: Completed
This project is an addition to an existing colonial home. aijou group designed a new 2-car garage with a Master Suite above. The project connects to the existing home with a new Mudroom and also reconfigures the exiting Kitchen and added a new Bedroom.

Fowler Street
Lowell, MA
Project Type: New Home Construction
Projected Status: In Progress
This project is a new construction replacement to an existing multi-generational, two family home. aijou group designed 4,300sf of living area with an open concept first floor with kitchen, dining and family room along with 6 bedrooms, 3 full and 2 half baths along with an upstairs Laundry Room and Master Suite. The new design also creates an improved street presence with a defined main entrance area.
|